Помещение добавлено в избранное
Помещение удалено из избранного
Квартиры от застройщика

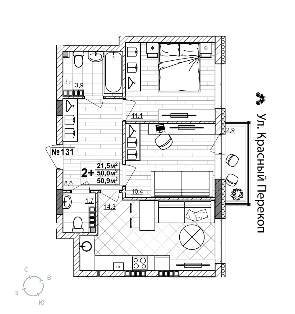
Квартира 50.9 м2

ЖК Смородина, дом 3
  • Площадь
    50.9 м2
  • Этаж
    4
  • Срок сдачи
    I квартал 2027
  • Комнат
    2+
  • Номер
    131
  • Общая приведенная площадь
    50.9 м2
  • Общая площадь
    50 м2
  • Наличие отделки
    под ключ

Характеристики

  • Жилая площадь
    21.5 м2
  • Площадь лоджии
    2.9 м2
  • Тип санузла
    раздельный
  • Свободная планировка
    Нет
  • План дома
  • Площадь кухни
    14.3 м2
  • Тип балкона
    балкон
  • Вид из окон
    во двор
  • Подъезд
    4
  • План секции

Ситибоксы

Чтобы освободить пространство внутри квартиры, во всех домах предусмотрены ситибоксы – специальные помещения для хранения сезонных вещей и инвентаря на цокольном этаже.

Выбрать
Доступно 51 место

О жилом комплексе

ЖК Смородина

Жилой комплекс «Смородина» - это комфортный квартал в Автозаводском районе Нижнего Новгорода вблизи улицы Зеленхозовская, который будет состоять из 11-ти четырехэтажных домов.

Уют, безопасность и камерность обеспечит закрытый двор, а близость к лесному массиву сделают прогулки по территории жилого комплекса приятными и расслабляющими! 

Яркий и вкусный, как знакомая всем с детства ягода, жилой комплекс будет удачно расположен вдали от городской суеты, но при этом в районе с развитой инфраструктурой и удобной транспортной развязкой. 

Строительство ведется при поддержке банка ДОМ.РФ

ЖК Смородина
Посмотреть все квартиры

Нужна наша помощь?

Просто заполните форму и мы с вами свяжемся

*Нажимая на кнопку «Отправить», я даю согласие на обработку персональных данных