- Главная
- Квартиры от застройщика
- Квартиры 2+ комнатные в Автозаводском районе от застройщика
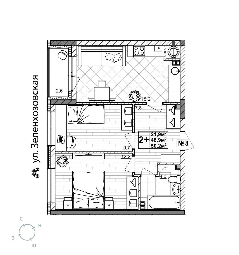
Квартира 50.2 м2
Характеристики
-
Жилая площадь21.9 м2
-
Площадь лоджии2.6 м2
-
Тип санузласовмещенный
-
Свободная планировкаНет
-
Площадь кухни15.2 м2
-
Тип балконалоджия
-
Вид из оконво двор
-
Подъезд1
Ситибоксы
Чтобы освободить пространство внутри квартиры, во всех домах предусмотрены ситибоксы – специальные помещения для хранения сезонных вещей и инвентаря на цокольном этаже.
О жилом комплексе
Жилой комплекс «Смородина» - это комфортный квартал в Автозаводском районе Нижнего Новгорода вблизи улицы Зеленхозовская, который будет состоять из 11-ти четырехэтажных домов.
Уют, безопасность и камерность обеспечит закрытый двор, а близость к лесному массиву сделают прогулки по территории жилого комплекса приятными и расслабляющими!
Яркий и вкусный, как знакомая всем с детства ягода, жилой комплекс будет удачно расположен вдали от городской суеты, но при этом в районе с развитой инфраструктурой и удобной транспортной развязкой.
Строительство ведется при поддержке банка ДОМ.РФ
-
отделка
предчистоваяЖК Смородина Дом 2 -
-
отделка
предчистоваяЖК Смородина Дом 2 -
-
отделка
предчистоваяЖК Смородина Дом 2 -
-
отделка
под ключЖК Смородина Дом 2 -
-
отделка
под ключЖК Смородина Дом 2 -
-
отделка
под ключЖК Смородина Дом 2 -
-
отделка
под ключЖК Смородина Дом 2 -
-
отделка
под ключЖК Смородина Дом 2 -
-
отделка
под ключЖК Смородина Дом 2 -
-
отделка
под ключЖК Смородина Дом 2 -
-
отделка
под ключЖК Смородина Дом 2 -
-
отделка
под ключЖК Смородина Дом 2 -
Галерея
Нужна наша помощь?
Просто заполните форму и мы с вами свяжемся