Помещение добавлено в избранное
Помещение удалено из избранного

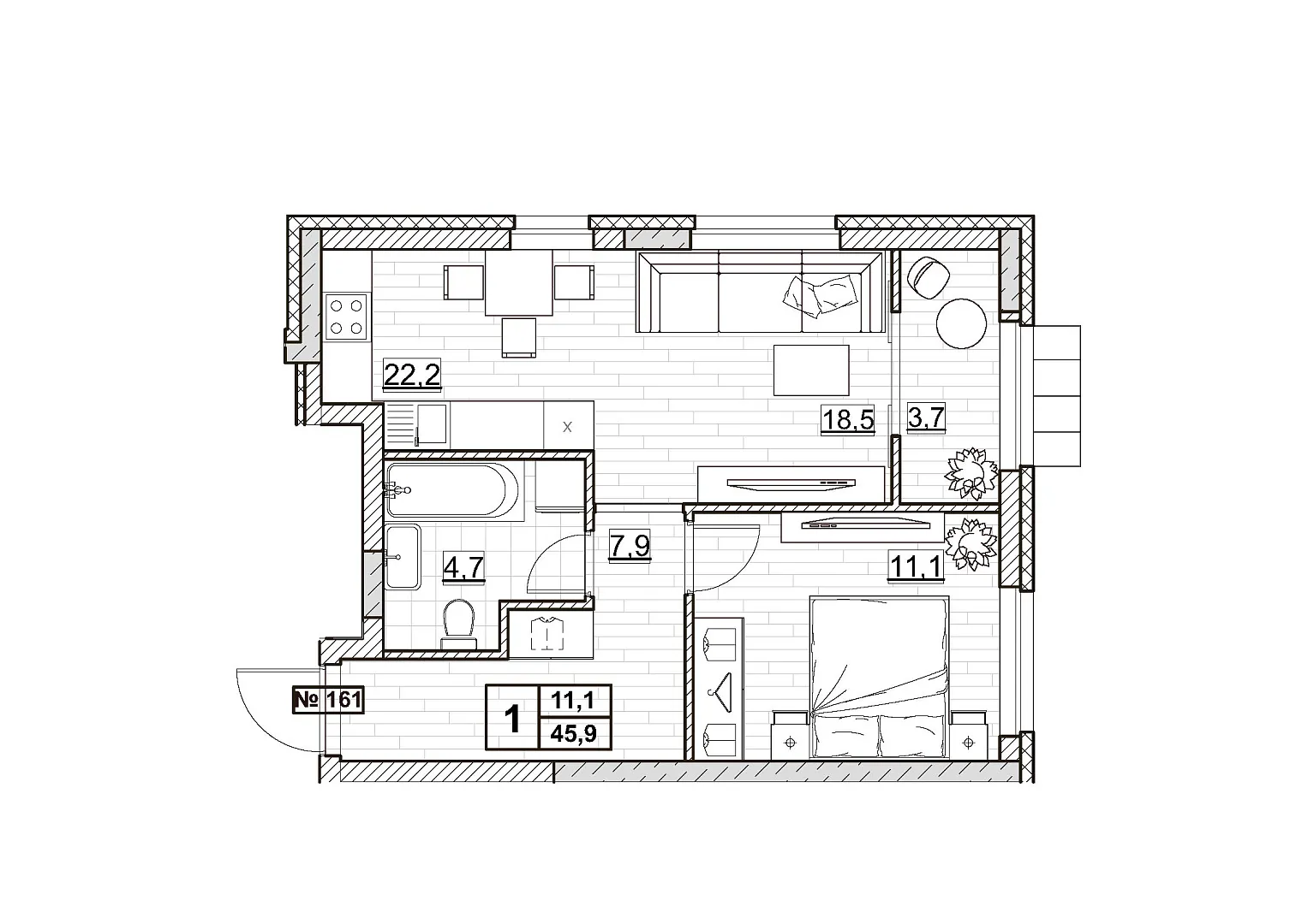
Квартира 45.9 м2

ЖК Щёлоковский, дом 1
  • Площадь
    45.9 м2
  • Этаж
    20
  • Комнат
    1+
  • Номер
    161
  • Общая приведенная площадь
    45.9 м2
  • Жилая площадь
    14.8 м2
  • Наличие отделки
    черновая

Характеристики

  • Площадь кухни
    18.5 м2
  • Тип санузла
    совмещенный
  • Свободная планировка
    Нет
  • Тип балкона
    нет
  • Вид из окон
    во двор и на улицу
  • Подъезд
    1

Машино-места

Выбрать
Доступно 38 мест

Ситибоксы

Выбрать
Доступно 42 места

О жилом комплексе

ЖК Щёлоковский

«Щёлоковский»  –  проект, объединяющий в себе городской драйв, тишину леса, вдохновляющие виды с высоты 24-х этажей, внимание к благоустройству и комфорт повседневности.

Жилой комплекс «Щёлоковский» — это абсолютно новое продуманное пространство для жизни, которое не только учитывает потребности резидентов, но и предвосхищает их.

ЖК Щёлоковский
Посмотреть все квартиры

Нужна наша помощь?

Просто заполните форму и мы с вами свяжемся

*Нажимая на кнопку «Отправить», я даю согласие на обработку персональных данных